當前位置:產品中心 > 醋酸用流量計 > 醋酸用流量計
| 型 號: | DQH |
| 品 牌: | 多欽儀表 |
| 所屬分類: | 醋酸用流量計 |
| 所 在 地: | 上海 |
| 更新日期: | 2017.07.24 12:58:23 |
醋酸用流量計,DN10-150; 純機械式,可回零、觸點報警;垂直安裝、水平安裝等。
??醋酸(36%--38%)、冰醋酸(98%),化學名:乙酸,化學式CH3COOH,是一種有機一元酸,為食醋主要成分。純的無水乙酸(冰醋酸)是無色的吸濕性固體,凝固點為16.6℃(62℉),凝固后為無色晶體,其水溶液中呈弱酸性且蝕性強,蒸汽對眼和鼻有刺激性作用。
??可以測量的醋酸流量計有:金屬浮子流量計、渦輪流量計和渦街流量計。這里介紹乙酸用金屬浮子流量計。
??乙酸用流量計,不是一口價產品,規格、性能、口徑、配置不同,價格也就不同,需要根據實際工況要求選型報價。
?
?
醋酸用流量計~機械式金屬浮子流量計
??用途:常用來測量水、液氨、酒精、甲醇、乙醇、醋酸、乙酸等一般液體;空氣、氮氣、氧氣等一般氣體;不能測量粘度較高的介質;
??缺點:受到安裝方式影響,最經濟型安裝方式:垂直安裝下進上出型,也可水平安裝。
??性能:有就地指示、電遠傳、限位開關報警、耐腐蝕、夾套型、阻尼型和防爆等品種;
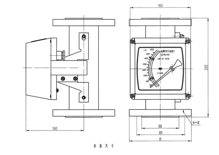
??安裝方式:法蘭、螺紋、卡裝。
??常用型號:DQH-25FA-R40-1.6E-M1
??型號注解:金屬浮子流量計,純機械式,測量介質為醋酸(潔凈的液體都可以),DN25,表體材質為304不銹鋼,下進上出型,溫度低于100度,額定壓力1.6mpA,顯示瞬時流量,無累計無輸出,法蘭型,自配安裝法蘭等緊固件。

? ? ? ? ? ? ? ? ? ? ? (純機械式 ?顯示瞬時流量 ?無累計 ?垂直安裝)
?
??醋酸用流量計產品特點:
★ ?金屬管浮子流量計適用于小口徑和低流速介質流量測量;
★ ?工作可靠,維護量小,壽命長;
★ ?金屬管浮子流量計對于直管段要求不高;
★ ?較寬的流量比10:1;
★ ?雙行大液晶顯示,可選現場瞬時/累計流量顯示,可帶背光單軸靈敏指示;
★ ?非接觸磁耦合傳動;
★ ?金屬管浮子流量計全金屬結構,適于高溫、高壓和強腐蝕性介質;
★ ?可用于易燃、易爆危險場合;
★ ?可選二線制、電池、交流供電方式;多參數標定功能;
★ ?金屬管浮子流量計帶有數據恢復,數據備份及掉電保護功能.
?技術要求:
★ 測量范圍:水(2.5~60000)L/h ? ? 空氣(0.07~2000)m3/h (在0.101025 MPa、20℃)。
★ 準確度等級: 1.5、2.5級。
★ 量程比: 10:1。
★ 工作壓力: DN15~50,4 MPa; DN80~100,1.6MPa。
★ 介質溫度: -80℃~200℃(內襯F46流量計0℃~80℃)。
★ 液體介質粘度:DN15<5mPa·s;DN25~100<5mPa·s。
★ 連接方式:法蘭連接、螺紋連接等;法蘭采用GB/T9119.8~10標準。
★ 總長度: DN15~100 250mm。
★ 測量管材質:普通型1Cr18Ni9Ti,耐腐型Cr18Ni12Mo2Ti,316L、316襯F46等;如用戶有特殊要求可特殊訂貨。?

?

?
??醋酸用流量計同系列產品展示:
? ? ? ? ? ? ? ? ? ? ? ? ? ? ? ? ? ? ? ? ? ? ? ? ? ? ? ? ? ? (智能型)
? ? ? ? ? ? ? ? ? ? ? ? ? ? ? ? ? ? ? ? ? ? ? ? ? ? ? ? ?(下限報警型)

? ? ? ? ? ? ? ? ? ? ? ? ? ? ? ? ? ? ? ? ? ? ? ? ? ? ? ?(水平安裝型)

? ? ? ? ? ? ? ? ? ? ? ? ? ? ? ? ? ? ? ? ? ? ? ? ? ?(大口徑尺寸DN150)

? ? ? ? ? ? ? ? ? ? ? ? ? ? ? ? ? ? ? (醋酸用流量計卡箍連接)
?
? ? ? ? ? ? ? ? ? ? ? ? ? ? ? ? ? ? ? ? ? ? ? (防爆型)
選型樣本下載:http://www.hljwxpx.cn/xiazai/detail/65?
說明書下載:http://www.hljwxpx.cn/xiazai/detail/120
?
?
使用與維修
★?安裝流量計之前一定要將管道內的焊?渣、雜物清理干凈。
★??流量計必須垂直于地面安裝其傾斜度不得超過2°。否則會影響測量準確度。
★?為了確保流量計的測量準確性,應在流量計的進口端增加不少于10DN的直管段,出口端不少于5DN的直管段,測量時調節控制閥必須安裝在流量計的下游。
★??若被測介質為大的脈動流或兩相流,應在流量計的上游安裝緩沖器來消除或減弱脈動,保證介質的流動是單相穩定的,同時,建議流量計最好使用阻尼型的。
★?若被測介質較臟或含有導磁顆粒時,應在流量計的上游安裝過濾器或磁過濾器。
★??流量計的安裝應能適當支撐管道的振動或減少流量計的軸向負荷,否則應增加固定流量計的支撐。
★?為了便于流量計的保養維修,磁過濾器的清洗以及用戶管路的定期維護保養,建議使用如圖所示的旁路管道。
??當流量計用于氣體測量時,應保證?管道內的工作壓力不少于5倍流量計?的壓力損失,使流量計能夠穩定正常動作。(圖6 安裝圖)

★??對電遠傳及帶報警限位開關的流量計在使用前,打開儀表蓋,按接線圖示正確接線。對于報警型的旋松限位開關處的螺絲,用戶根據需要設定限位報警位置,并旋緊螺絲,復原后使用。
★??按儀表指示器中的警示牌,取出運輸中防止浮子振動的阻動件,復原后再使用儀表。
★?若開啟流量計時,由于管道內沒有壓力或系統還未達到儀表正常使用的工作壓力,必須緩慢開啟控制閥,直到系統正常,儀表方可使用,否則容易造成指針跳動或浮子的突然撞擊而損壞的現象。
?
?
售后與質保 ??
?
多欽儀表(上海)有限公司供應的所有產品:
所有產品質保2年;
免費提供電話咨詢、指導安裝調試等服務;
協商上門指導安裝、調試等事宜,只收取合理的差旅費用;
量大可以免費上門指導安裝、調試;
服務宗旨:不管產品使用多長時間,只要您找到我們,我們都會為您解決所有問題,直到滿意為止。相信我們從事流量計行業10多年的實踐經驗能為你帶來滿意的服務。
?
?